

Pultdach Klassik 321
Kundenhaus
Pultdachhaus in Hanglage
Dieses moderne Pultdachhaus zeigt eindrucksvoll, wie Architektur und Grundstück zu einem harmonischen Gesamtkonzept verschmelzen können. Die versetzte Bauweise nutzt die Hanglage konsequent aus und eröffnet auf jeder Ebene neue Perspektiven, lichtdurchflutete Räume und fließende Übergänge zwischen Innen- und Außenbereich.
„Optik, Funktion und Luxus – genau so haben wir uns unser Zuhause vorgestellt“, bringt es der Bauherr auf den Punkt.
Bereits beim Betreten wird die besondere Großzügigkeit spürbar: Der offene Wohn- und Essbereich mit beeindruckendem Luftraum bildet das kommunikative Zentrum des Hauses und schafft eine Atmosphäre von Weite und Leichtigkeit. Durchdachte Details wie die von Küche und Flur zugängliche Speisekammer sorgen dabei für Komfort im Alltag. Ergänzt wird das Erdgeschoss durch einen integrierten Sport- und Saunabereich, der Raum für Bewegung und Entspannung im eigenen Zuhause bietet.
Ein spannendes Highlight sind die im Kellergeschoss untergebrachten Unternehmensräume. Sie fügen sich funktional in das Haus ein und ermöglichen gleichzeitig eine klare Trennung zwischen Arbeiten und Wohnen – ideal für moderne Lebens- und Arbeitskonzepte.
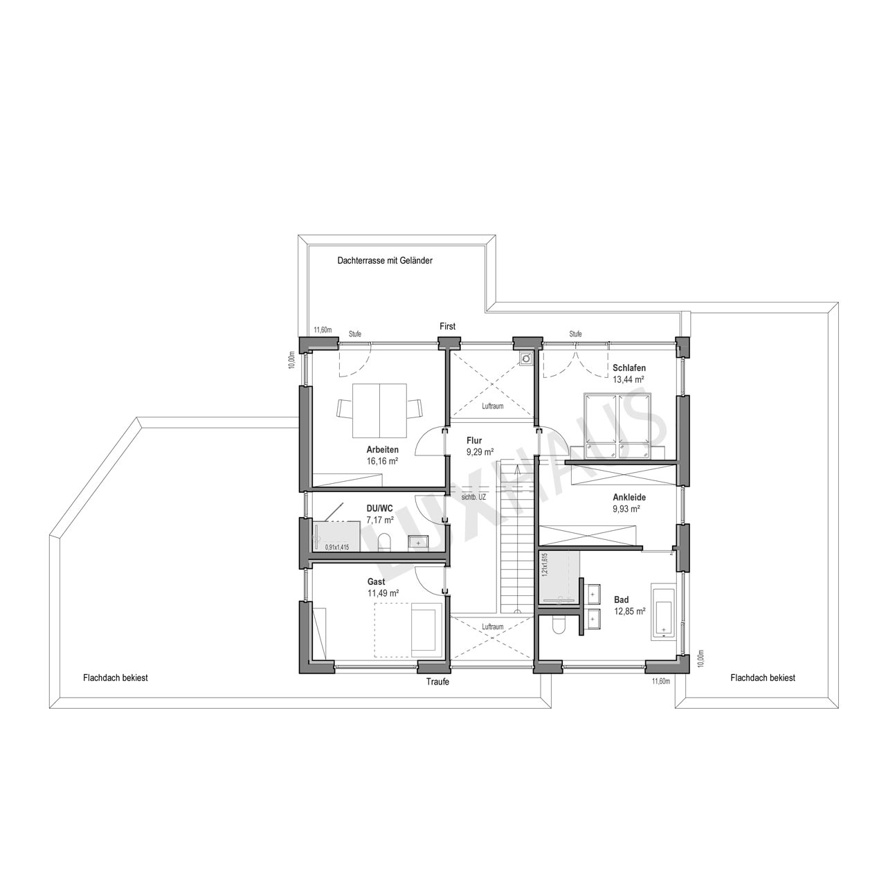
Im Obergeschoss entstehen ruhige Rückzugsorte: Neben Arbeits- und Gästezimmer bildet der private Bereich mit Schlafzimmer, Ankleide und Bad eine abgeschirmte Ebene der Erholung. Der Außenpool sowie die markante Linienführung des Pultdachs unterstreichen den modernen Charakter dieses Hauses und machen es zu einem außergewöhnlichen Beispiel für individuelles Wohnen in Hanglage.
Haus anfragen
Zusatzinfo
Für Anfragen zu diesem Kundenhaus verwenden Sie bitte die interne Bezeichnung LUXHAUS-29119.
Haus anfragen








