

Walmdach 174
Kundenhaus
Walmdachhaus mit Erker
Moderne Stadtvilla mit Erker und Balkon trifft auf technikaffines Familienwohnen. In diesem Haus lebt unser Verkäufer André Schmitt gemeinsam mit seiner Frau und den beiden Kindern. Als ehemaliger Bauherr war er von LUXHAUS so überzeugt, dass er kurzerhand seinen Beruf wechselte und nun mit Leidenschaft andere Familien bei der Realisierung ihrer individuellen LUXHAUS Projekte begleitet. Ein besonderes Highlight für den technikbegeisterten Hausherrn stellt die Sonnenbatterie dar, mit der er das Haus nahezu autark betreibt.
Das Walmdachhaus mit Erker präsentiert sich architektonisch als moderne Stadtvilla und kombiniert elegantes Design mit hoher Funktionalität. Der großzügige Grundriss ist perfekt auf die Bedürfnisse einer Familie abgestimmt. Im Erdgeschoss bietet der offene Wohn-, Ess- und Kochbereich mit direktem Zugang zur Terrasse ein lichtdurchflutetes Ambiente. Ein Kamin sorgt für zusätzliche Wohnqualität. Besonders praktisch ist der durchdachte Gästebereich mit separatem Zimmer und eigenem Dusch-WC, ideal für Besuch oder Homeoffice.
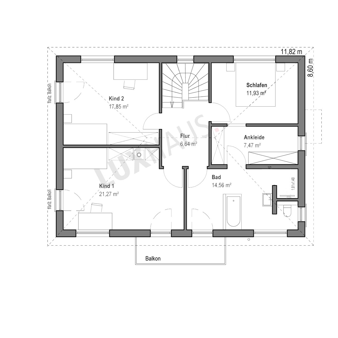
Im Obergeschoss stehen den Bewohnern zwei geräumige Kinderzimmer sowie ein großzügiges Familienbad mit Badewanne und bodengleicher Dusche zur Verfügung. Ergänzt wird das Raumangebot durch das Schlafzimmer mit direktem Zugang zur Ankleide. Der Balkon rundet das Konzept der Stadtvilla ab und eröffnet einen schönen Blick ins Grüne.
Neben der architektonischen Gestaltung überzeugt das Walmdachhaus mit Erker auch durch technische Raffinessen, Energieeffizienz und intelligente Planung. Die Kombination aus moderner Haustechnik und hochwertigen Materialien schafft ein nachhaltig wohngesundes Zuhause für die ganze Familie.
Haus anfragenZusatzinfo
Für Anfragen zu diesem Kundenhaus verwenden Sie bitte die interne Bezeichnung LUXHAUS-23168.
Haus anfragen







